I już po urlopie. Minęło tak szybko że czasem wydaje mi się, że dopiero mamy wyruszać. Zakynthos to cudowna wyspa. Polecam wszystkim, zarówno tym którzy na urlopie lubią leżeć plackiem na plaży jak i tym którzy uwielbiają aktywnie spędzać czas.
Tymczasem pora wziąć się do roboty! Dziś post o KUCHNI od kuchni:) Kuchnia jest pierwszym pomieszczeniem opisywanym w tej serii ze względu na to, iż jest ona dla mnie sercem domu.
Każdy z was zapewne doświadcza tego chociażby podczas imprez. Człowiek wysprząta cały dom przed imprezą, naszykuje uroczyście salon na przybycie gości a i tak koniec końców wszyscy lądują w kuchni. Kuchnia to jakieś takie magiczne miejsce gdzie każdy czuje się jak w domu. To tu przygotowujemy posiłki dla naszych najbliższych i pijemy kawę z przyjaciółką. W związku z tym już na samym początku- zanim jeszcze kupiłyśmy mieszkanie- wiedziałyśmy, że kuchnia musi być otwarta na salon.
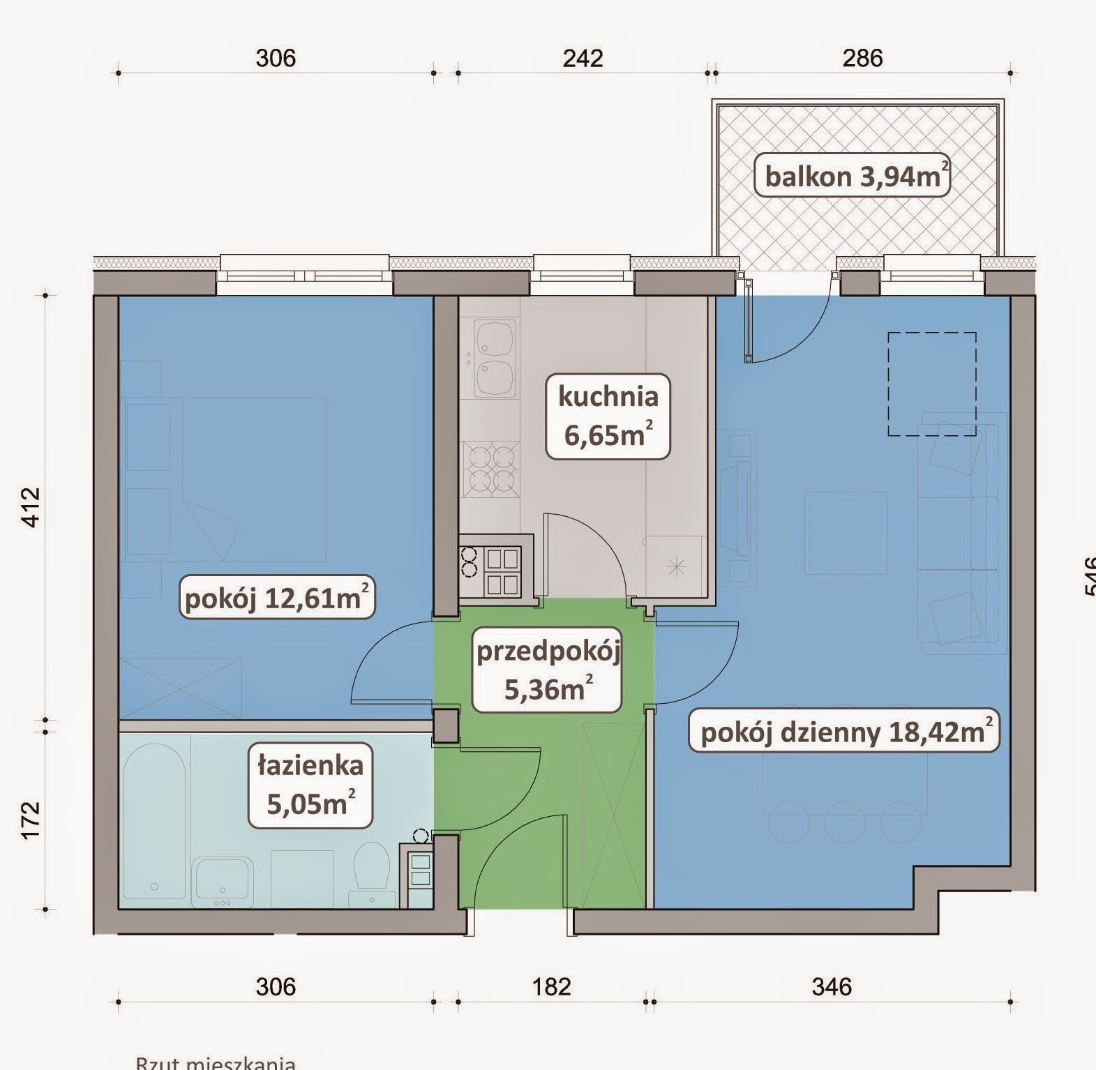
![]() |
| Pierwotny rozkład mieszkania. Ostatecznie wejście do Kuchni zostało zamurowane a prawa ściana wyburzona. |
![]() |
| Rozkład pomieszczeń po przebudowie- w rzucie widać pierwsze piętro mieszczące się na antresoli. Pod nim od lewej: łazienka, przedpokój i część salonu. |
Jakie są plusy i minusy takiej decyzji:
PLUSY:
- dzięki otwartej kuchni na salon oba pomieszczenia wydają się dużo większe i przestronniejsze
- podczas imprez lub przyjmowania gości, jeśli przygotowujesz posiłek, nie jesteś odizolowana od towarzystwa
- jeśli masz małe dzieci, będąc w kuchni zawsze możesz spoglądać jak bawią się w salonie
- w otwartej kuchni nawet przy małym blacie roboczym czujesz większa swobodę ruchów
MINUSY:
- zdecydowanym minusem jest konieczność utrzymania choćby minimalnego porządku. Na blatach nie może znajdować się zbyt wiele rzeczy. Jednak według mnie w dzisiejszych czasach gdy kobiety zostały wyręczone przez tak cudowne urządzenie jakim jest zmywarka, kwestia porządku w kuchni nie jest już taką trudnością.
- nawet najcichsza zmywarka jest słyszalna w salonie. No cóż taka prawda, urządzenie to nie jest bezszelestne, ale bez przesady. Mamy zmywarkę w otwartej kuchni i swobodnie możemy oglądać przy niej tv. Poza tym zmywarkę nastawiamy zazwyczaj na noc- zmywarka w otwartej na salon kuchni może przeszkadzać w momencie gdy salon służy też za sypialnie, ale myślę, że i temu można zaradzić.
- zapachy z kuchni przedostają się do salonu lub innych pomieszczeń. Nie wiem jak wy ale ja jeść lubię i zapach jedzenia też lubię. Może gdyby kuchnia otwarta byłaby na sypialnię to niekoniecznie, ale na salon...?? Poza tym w dzisiejszych czasach nasze posiłki nie są już tak tłuste i ciężkie jak kiedyś wiec i zapachy inne. Zawsze można otworzyć okno lub włączyć okap. A najpiękniejsza sprawą jest gdy pieczesz chleb lub ciasto i cały zapach rozchodzi się swobodnie po domu....mniam, mniam:)
- może nie minusem ale trudnością jest fakt że kuchnia musi współgrać z salonem lub pomieszczeniem na które jest otwarta. To czasami może przysporzyć kłopotu.
Mimo minusów według nas otwarta kuchnia jest naprawdę wielkim plusem. I tak też zrobiłyśmy- zamurowałyśmy wejście do kuchni z przedpokoju i wyburzyłyśmy ścianę granicząca z salonem (na rzucie pokojem dziennym) zostawiając jedynie 70 cm które przeznaczyłyśmy na zabudowę lodówki i szafek.
Otwarcie kuchni na salon było jedną z najlepszych decyzji jakie podjęłyśmy w kwestii kuchni.
![]() |
| Widok na kuchnię z salonu. |
Kolejne DOBRE DECYZJE to:
- białe, lakierowane, frezowane fronty- idealne jeśli chodzi o utrzymanie porządku. Może i widać na nich palce ale jak łatwo te ślady można usunąć! Dodatkowo jeśli coś się stanie z frontem zawsze można oddać do powtórnego lakierowania. Biała, lakierowana kuchnia wydaje się bardzo estetyczna i nowoczesna, jednak można ją łatwo połączyć z różnymi stylami. Frezowane fronty według mnie są lepsze niż fronty z uchwytami z uwagi na ich wytrzymałość. Zwykłe uchwyty prędzej czy później się zniszczą lub przestaną się podobać.
- szary blat ze strukturą betonu- blat, który wybrałyśmy jest idealny ze względu na soją wytrzymałość oraz fakt, iż jest bardzo mało brudzący. Początkowo myślałyśmy o blacie drewnianym. Marzyłam o takim od zawsze, ale nie ukrywajmy, trzeba go pielęgnować. Bałam się, że będzie na nim bardzo widać wszelkie rysy i że spuchnie w okolicach zlewu. Może moje obawy są niesłuszne, ale na nasz blat nie mogę narzekać.
![]() |
| Ekspres do kawy KRUPS- wygrałyśmy w konkursie organizowanym przez dewelopera LCC. Bez niego nie wyobrażam sobie już życia. Kafle na ścianę-Vvives Mugat Blanco. |
- trójwymiarowe kafle między szafkami- chciałam takie odkąd zobaczyłam kafle Macieja Zienia Piccadilly. Niestety żona powiedziała, że za drogie. Dwa lata temu kosztowały coś ponad 200pln/m2. Znalazłyśmy podobne Vives Mugat Blanco we "wrocławskim zagłębiu płytek i wyposażenia łazienek" na ul. Karmelkowej a dokładnie w Cer-Point. Każdy kto wykańcza swój dom lub mieszkanie powinien zajechać na Karmelkową. Naprawdę można znaleźć tam cuda w dobrych cenach. W Cer-Point zamawiałyśmy wszystkie kafle do mieszkania i naprawdę byłyśmy zadowolone z obsługi. Przy większym zamówieniu można liczyć na rabaty :)
- osobna, duża szafka przeznaczona na kosz na śmieci- nasza szafka jest wysuwana spod blatu roboczego i mieści w sobie trzy pojemniki do segregacji śmieci.
- maksymalne wykorzystanie wysokiego pomieszczenia pod szafki- w miejscu gdzie stoi lodówka mamy szafki na wysokość ok 2,6m. Powiem wam, że szafek nigdy za wiele :)
![]() |
| Maksymalne wykorzystanie wysokiego pomieszczenia pod szafki. |
- młynek na odpady- najcudowniejsza rzecz na świecie. Po raz pierwszy spotkałyśmy się z nim w mieszkaniu Rafałka. Po 5 latach użytkowania postanowiłyśmy, że też będziemy taki mieć- wybrałyśmy młynek Teka TR-50.2 Super wygoda zwłaszcza po obiedzie. Wszelkie odpadki organiczne wrzucasz do zlewu, odkręcasz wodę i włączasz młynek. Usuwa w prosty i szybki sposób wszystkie miękkie odpadki organiczne, pomagając tym samym utrzymać kuchnię w czystości. Rozdrabniać można: obierki jarzyn i owoców, niewielkie kostki i chrząstki, ości ryb, skorupki jaj, fusy herbaty i kawy oraz resztki jedzenia. Dzięki temu wasz kosz na śmieci już nigdy nie będzie brzydko pachniał.
- bateria kuchenna z wyciąganą wylewką- niebywała wygoda. Naszą kupiłyśmy we Wrocławiu na ul. Trójkątnej. Sklep z zewnątrz wygląda jak żywcem wyjęty z PRL ale mają tam naprawdę porządne zaopatrzenie. Kupiłyśmy w nim całe wyposażenie sanitarne łazienki. TU link do sklepu internetowego. Panowie mają anielska cierpliwość zwłaszcza do wybrednych, niezdecydowanych i średnio zorientowanych klientek :)
Natomiast nasze BŁĘDY i niekoniecznie dobre wybory to:
- ciemnoszare kafle na podłodze- jak je zobaczyła to bardzo chciałam mieć. Duże (60x60cm), ciemnoszare, cieniowane, matowe kafle....piękne!! Tylko czemu widać na nich każdego sierściocha naszych kotów, każdą rozlaną kroplę wody, każdy pyłek i ogólnie każdą każdość??!! O ton jaśniejsze byłyby o wiele lepszym rozwiązaniem.
- zmywarka przy ścianie- nie było na nią innego miejsca wiec wylądowała przy ścianie. na dodatek ściana pomalowana zwykłą farbą wiec ciągle jest pochlapana. Jak otwieram zmywarkę to para osiada na ścianie i robią się zacieki:(
- zbyt wysoko położone kontakty- nie przemyślałyśmy tego w ogóle. Idealnie rozmieściłam rozstawienie kontaktów ale nie ich położenie na wysokość. Powinny być na wysokości ok 10-15cm od blatu, a są na wysokości 30cm. Dodatkowo "fachowiec" który kład kafle nie wpadł na pomysł aby kontakty rozmieścić pośrodku kafelki wiec nachodzą one na dwa kafle. No cóż pozostaje mi tylko powiedzieć sobie- "Za 10 lat się zmieni".
- okap podszafkowy- tragedia. Wybrałyśmy go ze względów estetycznych. Żona wybierała cały sprzęt RTV i AGD w mieszkaniu i naprawdę się do tego przyłożyła. Chciałyśmy cichy ale dobrze pochłaniający okap. Kupiłyśmy okap z Gorenje. Nie dość że i tak jest głośny (mimo, iż najcichszy) to w ogóle nie pochłania pary. Najlepszy są zwykłe okapy kuchenne- takie samodzielne. Może i zabierają więcej miejsca ale przynajmniej spełniają swoją funkcję. Nigdy więcej okapu podszafkowego!
- zbyt mało półek- żałuję, że zamiast jednej z górnych szafek nie zrobiłyśmy po prostu trzech półek. Kuchnia bez nich często wydaje się zbyt sterylna i zimna. Próbuję to nadrobić innymi bibelotami ale drewniane półki byłyby lepsze.
- zastosowanie zwykłej farby a nie lateksowej- jej mankament opisałam przy minusie zmywarkowym. No cóż nie był to najlepszy pomysł- "Za 10 lat się zmieni"....może nawet za rok, jak znajdę siłę na następne malowanie.
- położenie fugi epoksydowej- wspomniany już wcześniej "fachowiec" twierdził, że jest najlepsza. Nie brudzi się, nie zdziera, nie robi się na niej grzyb, nie wchłania woda. Położyli ją w całym mieszkaniu. Tylko nikt nie wspomniał nam jak trudno usunąć jej pozostałości z kafli oraz że biała fuga po niecałym roku zżółkła. Jest twarda jak kamień wiec o wyskrobaniu nie ma mowy.
Mam nadzieję, że po przeczytaniu posta nauczycie się na naszych błędach i ich nie popełnicie. Oczywiście marne szanse że nie popełnicie żadnych błędów, ale tak to już jest z urządzaniem mieszkania. Pamiętajcie że nie ma się co martwić "Za 10 lat się zmieni" :)
Na koniec jeszcze wizualki jakie wykonałam na własne potrzeby przed remontem mieszkania. Pamiętajcie że przed przystąpieniem do remontu należy zrobić choć najprostszy projekt, aby uniknąć podstawowych błędów. Ja swój robiłam w programie SketchUp.
Program bardzo prosty w obsłudze. Jest możliwość wgrania podkładu (rzutu mieszkania), narysowania ścian oraz ściągnięcia gotowych bloków (np. mebli) z internetowej biblioteki. Jeśli jednak nie podołacie programowi to proponuję projekt zrobić "po staremu" czyli tak jak kiedyś robiła moja mama. Na kartce narysować w skali rzut pomieszczenia. Na oddzielnym arkuszu narysować w skali podstawowe meble i sprzęty AGD itp. (wszytko co chcemy aby znalazło się w pomieszczeniu), a następnie je wyciąć. Na rzucie rozkładamy dowolnie szafki i sprzęty- możemy nimi przesuwać w różne strony i sprawdzać który układ jest najlepszy.
Przy projektowaniu pomieszczeń dobrze jest też stworzyć sobie mapę inspiracji. Ja zrobiłam to w bardzo prosty sposób- dla każdego pomieszczenia w mieszkaniu utworzyłam na komputerze folder i do folderów wrzucałam wszystkie inspiracje (w formie zdjęć) jakie znalazłam w necie, a które uważałam że będą pasowały do naszego mieszkania. Poniżej inspiracje jakie wybrałyśmy:













